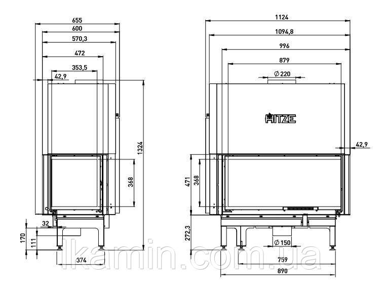
Камінна топка Albero AL19RG.H
Всі складові деталі продукції виготовляються з допомогою прогресивних верстатів 3D ЧПУ. Зварювання деталей здійснюється промисловими зварювальними роботами по MAG технології, в середовищі інертного/активного газу і забезпечує високу точність і якість зварного шва. Спеціальний сталевий профіль використовується для дверцят топки гарантує жорсткість і стійкий до високих температур.
Високо температурне керамічне скло розраховане до 800°C. У конструкції топки передбачена подача холодного повітря для горіння з примусовим перекриванням заслінкою.
Чисте скло залишається протягом всієї експлуатації каміна завдяки потоків холодного повітря відтинає дим від скла. Так само інженерами ретельно продумана подача вторинного повітря по задній стінці топки в верхню частину каміна що дозволяє підвищити ККД каміна шляхом допалювання газів.
Про що вам слід знати?
![]() |
Елементи топки виготовляються за допомогою сучасних верстатів з ЧПУ 3D. |
![]() |
Топка збирається на зварювальному роботі, методом MAG, в середовищі інертного/активного газу. |
![]() |
Проводиться відомим польським брендом Hitze. |
![]() |
Сталеві дверцята, виготовлені зі спеціального профілю, що гарантує жорсткість і стійкість до високої температури. |

Інші особливості
|
1
|
Топка має номінальну потужність 19 кВт. |
|
2
|
Призначена для роботи з твердим паливом. |
|
3
|
Відрізняється високим ККД (81%). |
|
4
|
Надається офіційна гарантія на 5 років. |
Топка Albero Albero AL19RG.H 19 кВт — відмінний вибір для вас і вашого каміна. Замовити цю модель ви можете прямо зараз на нашому сайті!







Відгуки
Відгуків немає, поки що.