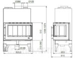
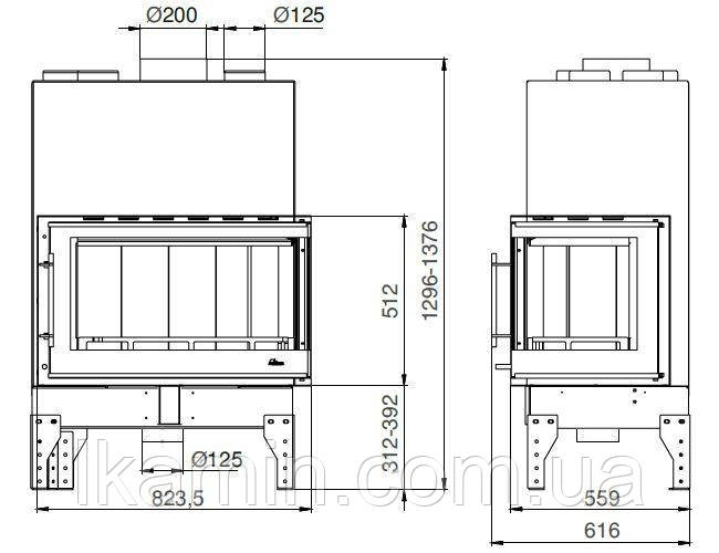
Камінна топка Uniflam 860 EVO PBS праве бокове скло
Камінна топка Uniflam 860 – це високоякісний виріб з високими параметрами продуктивності тепла і надзвичайно міцною конструкцією. Широкий асортимент бренду включає в себе як жароміцні чавунні камінні топки, так і сталеві топки футеровані шамотом.
Особливої уваги заслуговує екологічна лінійка сталевих камінних топок з шамотом UNIFLAM EVO, які, залежно від моделі, мають теплопродуктивність від 10 кВт до 14 кВт. Вони характеризуються надзвичайно високою ефективністю нагріву. Деякі з топок цієї лінії призначені для будинків, оснащених сучасними системами рекуперації.
Про що вам слід знати?
![]() |
Вбудований шибер дає можливість регулювання тяги в димоході (залежить від моделі). |
![]() |
Також чавунні топки Uniflam відповідають європейським екологічним стандартам, що підвищує їх статус серед аналогічного обладнання. |
![]() |
Проводиться відомим французьким брендом Uniflam. |
![]() |
Вогнетривке скло обладнання витримують температуру до 750С. |

Інші особливості
|
1
|
Топка має номінальну потужність 14 кВт. |
|
2
|
Призначена для роботи з твердим паливом. |
|
3
|
Відрізняється високим ККД (77%). |
|
4
|
Надається офіційна гарантія на 5 років. |
Топка Uniflam 860 EVO PBS праве бокове скло — відмінний вибір для вас і вашого каміна. Замовити цю модель ви можете прямо зараз на нашому сайті!







Відгуки
Відгуків немає, поки що.